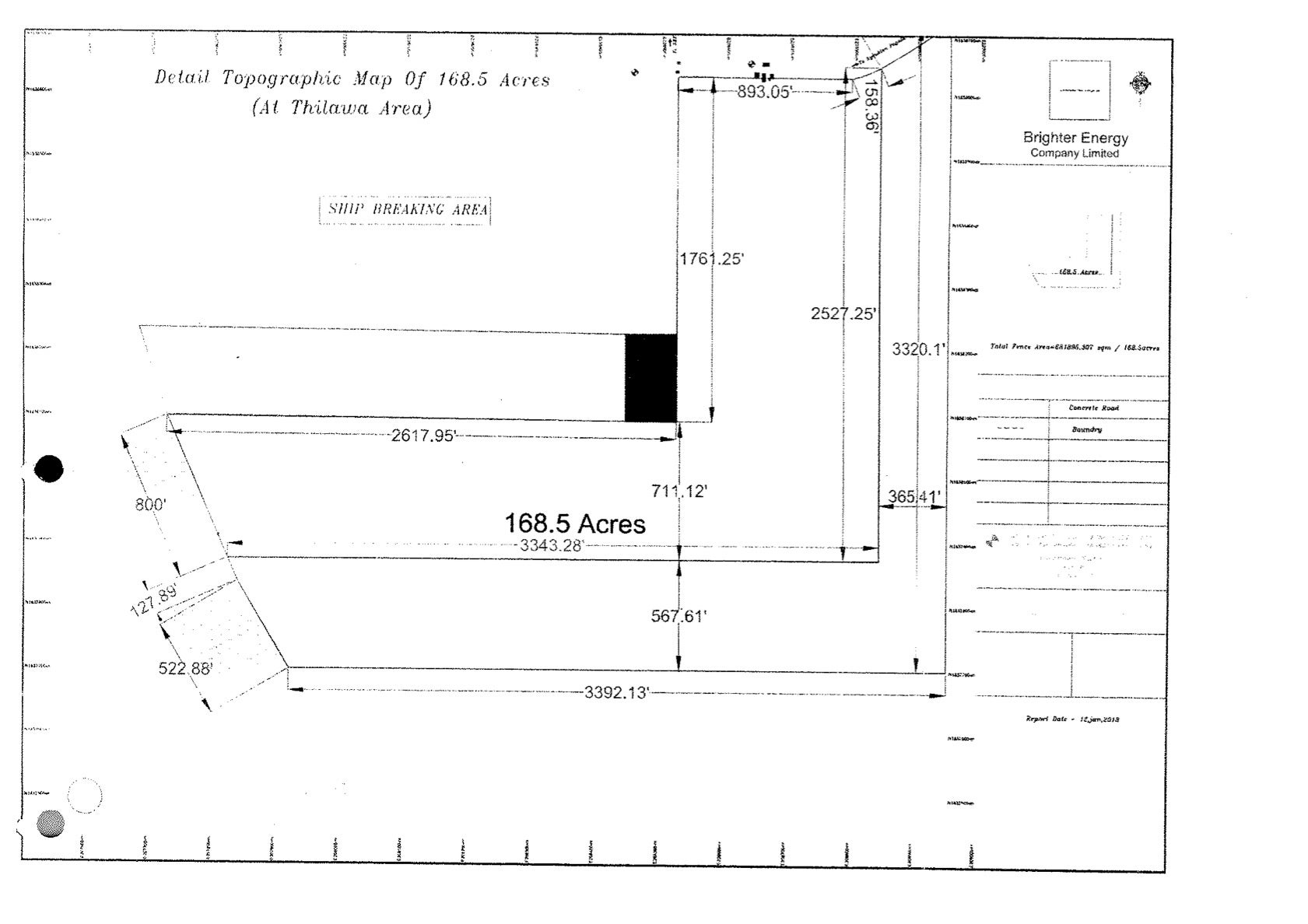
Map of fuel terminal location.

Map of fuel terminal location.

Source: Brighter Energy documents